Casa indipendente in vendita

San Marcello Piteglio, Via Nazionale Modenese - La Lima
€ 39.000
4 locali 4 locali
100 Mq 100 Mq
1 bagno 1 bagno

Casa indipendente in vendita

San Marcello Piteglio, Via Nazionale Modenese - La Lima

Descrizione annuncio

Proponiamo in vendita casa Indipendente alla Lima, Pistoia.

L'abitazione è situata nella località di Lima, perfetta per chi cerca una residenza in un ambiente tranquillo e verdeggiante.

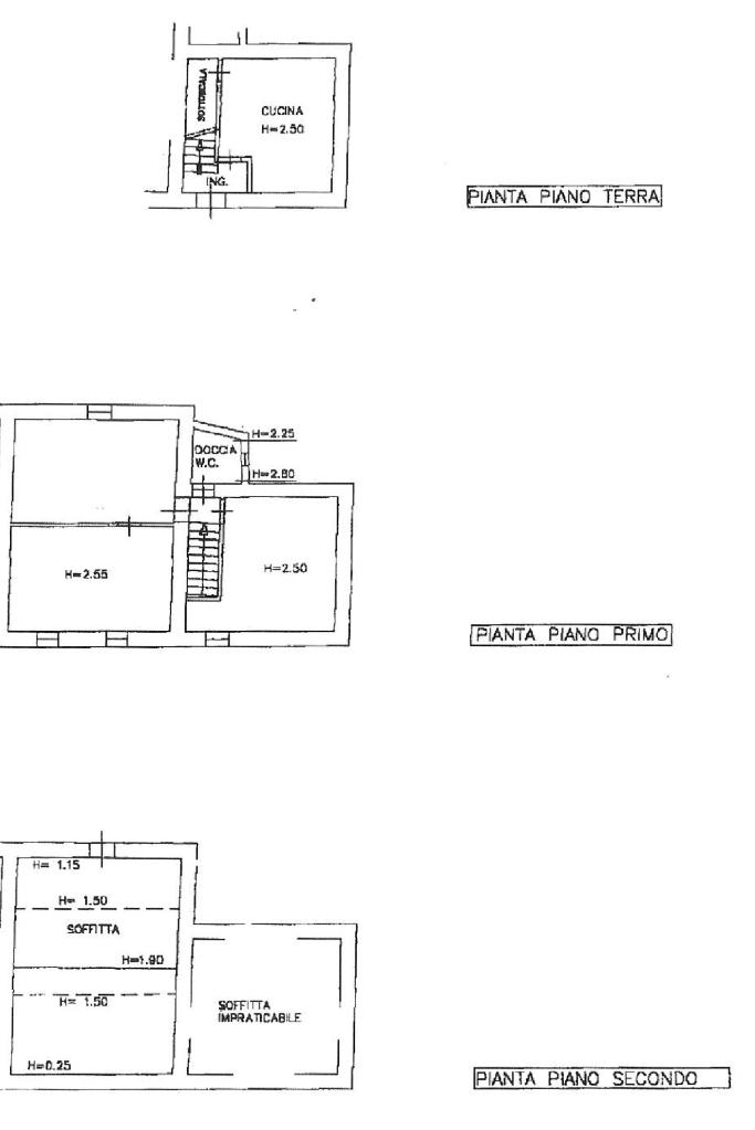
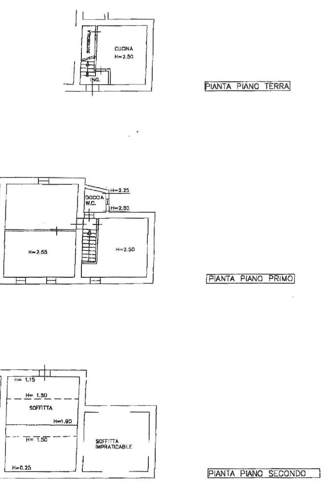
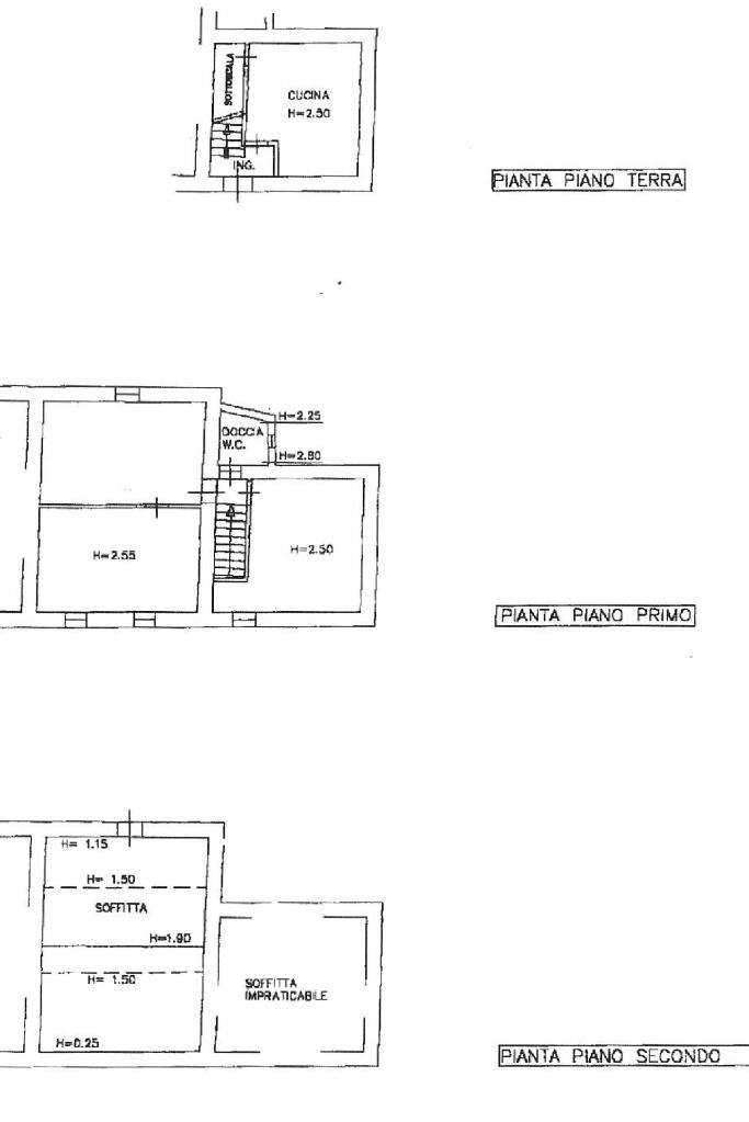
L’immobile si sviluppa su due livelli, offrendo spazi ben distribuiti e funzionali.

Al piano terra troviamo una cucina spaziosa e un comodo garage, ideale per un facile accesso e per lo stoccaggio.

Salendo al piano superiore, si accede al soggiorno, a due camere da letto luminose e a un bagno ben rifinito.

Il riscaldamento è autonomo, garantendo una gestione efficiente e indipendente dei consumi energetici.

Ristrutturata negli anni '90, la casa è abitabile fin da subito, con minimi interventi di personalizzazione necessari.

Oltre al garage sotto casa, l’immobile dispone anche di un secondo garage situato di fronte all’abitazione, offrendo ampio spazio per il parcheggio o per essere utilizzato come deposito aggiuntivo.

Questa soluzione è ideale per chi desidera una casa pronta da vivere, con comodi spazi esterni e interni, in un contesto naturale a pochi passi dai principali servizi.

Per maggiori informazioni o per fissare una visita, non esitare a contattarci.

Mostra tutto

Nelle vicinanze

Scuole Scuole
Scuola media Renato Fucini
2,4 Km
Ospedali Ospedali
Punto di primo soccorso di San Marcello
2,3 Km
Presidio Integrato Ospedale Territorio San Marcello Pistoiese
2,3 Km
Supermercati Supermercati
Coop
2,4 Km
Bar Bar
Bar
1,6 Km
Ristoranti Ristoranti
Ristoranti
2,9 Km
Mostra tutto

Caratteristiche

Rif.:
60960618
Piano:
Basso di 2
Totale piani:
2
Box:
2
Camere da letto:
2
Arredamento:
Assente
Mostra tutto
Prezzo Prezzo
€ 39.000
Rata mutuo Rata mutuo
€ 184 / mese
Spese annue Spese annue
€ 0
Proponi il tuo prezzoProponi il tuo prezzo

Classe Energetica

G
G
G
G
G
G
G
G
G
EP globale non rinnovabile:
175.00 kW h/m² anno
EP globale rinnovabile:
175.00 kW h/m² anno
EP invernale del fabbricato:
EP estiva del fabbricato:
Anno di costruzione:
1910
Riscaldamento:
Autonomo
Tipo impianto:
A radiatori
Tipo alimentazione:
Metano

Ti interessa visionare l'immobile?

Fissa un appuntamento  Fissa un appuntamento

Richiedi informazioni

Clicca su Leggi per aprire l'informativa
* Questi campi sono obbligatori

Calcola il tuo mutuo

Semplice e senza impegno
Anticipo

( % )
Mutuo

( % )

pochi semplici passi

inserisci i tuoi dati
Questionario completato
Grazie per aver richiesto un appuntamento senza impegno con un nostro Consulente del Credito e Assicurativo.

Hai inserito correttamente tutti i dati necessari e a breve riceverai una e-mail con un link da convalidare per inviare i tuoi dati.
Affiliato
Studio Pistoia Italia Sas
Viale Italia, 42 51100 Pistoia (PT)

Il nostro staff


  • Damiano Migliorini
    Affiliato

  • Rachele Del Vigo
    Collaboratrice

  • Giulia Giannoni
    Coordinatrice

  • Antonio Alfiero
    Collaboratore

  • Jacopo Imondi
    Collaboratore
Viale Italia, 42 51100 Pistoia (PT)
Zona: Pistoia
Mostra su mappa
Orari: Lun-Ven 09.00 13.00 - 15.30 20.00 Sab 09.00 13.00 - 15.30 18.00
Affiliato
Studio Pistoia Italia Sas
Viale Italia, 42 51100 Pistoia (PT)

2026 Tecnocasa Franchising S.p.A. - P. IVA 08365160152 - Via Monte Bianco 60/A 20089 Rozzano (MI). Ogni agenzia ha un proprio titolare ed è autonoma. Privacy policy | Policy utilizzo | Cookie policy