Casa indipendente in vendita

Pistoia, Via del Pian Martelli - Valdibrana
€ 130.000
6 locali 6 locali
120 Mq 120 Mq
1 bagno 1 bagno

Casa indipendente in vendita

Pistoia, Via del Pian Martelli - Valdibrana

Descrizione annuncio

In vendita porzione di colonica in zona Valdibrana, immersa nel verde e nella tranquillità della campagna toscana.

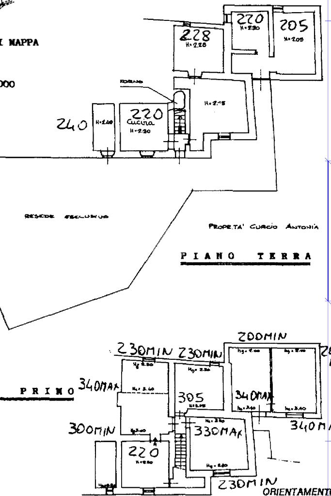
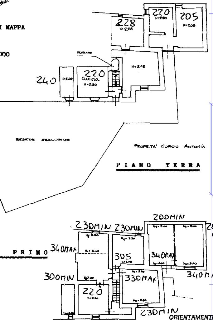
L’immobile è un terratetto disposto su due livelli e si compone di:

Piano terra: soggiorno, cucina e bagno

Primo piano: quattro camere da letto

La proprietà si presenta internamente da ristrutturare, offrendo così la possibilità di personalizzare gli ambienti secondo i propri gusti ed esigenze. Soluzione ideale per famiglie numerose che desiderano indipendenza, privacy e ampi spazi sia interni che esterni.

Tetto rifatto nel 2000, elemento importante che garantisce una base strutturale già solida.

All’esterno troviamo:

Giardino esclusivo di 1.520 mq

Uliveto di 4.380 mq

Frutteto di 4.020 mq

Per un totale di circa 9.000 mq di terreno, perfetto per chi ama la natura, coltivare o semplicemente vivere all’aria aperta.

Completa la proprietà una cantina su due livelli di circa 60 mq, ideale come deposito, rimessa o da valorizzare ulteriormente.

Ottima opportunità per chi cerca una soluzione indipendente in contesto riservato, con ampi spazi verdi e grande potenziale di valorizzazione.

Mostra tutto

Nelle vicinanze

Trasporto pubblico Trasporto pubblico
Corbezzi
Corbezzi
1,0 Km
Trasporto pubblico
2,9 Km
Corbezzi
Corbezzi
1,0 Km
Valdibrana
Valdibrana
2,7 Km
Scuole Scuole
Scuola dell'Infanzia di Cignano
2,1 Km
Bar Bar
Circolo Arci LaTorre Valdibrana
1,5 Km
Bar
2,1 Km
Ristoranti Ristoranti
La Cugna
1,2 Km
44 Parallelo
1,6 Km
Il Signorino
2,1 Km
Mostra tutto

Caratteristiche

Rif.:
61185901
Piano:
Su più livelli di 2
Totale piani:
2
Camere da letto:
4
Arredamento:
Assente
Condizionamento:
Assente
Mostra tutto
Prezzo Prezzo
€ 130.000
Rata mutuo Rata mutuo
€ 618 / mese
Spese annue Spese annue
€ 0
Proponi il tuo prezzoProponi il tuo prezzo
Immobile valutato con T·Valuta

Classe Energetica

G
G
G
G
G
G
G
G
G
EP globale non rinnovabile:
143.00 kW h/m² anno
EP globale rinnovabile:
175.00 kW h/m² anno
EP invernale del fabbricato:
EP estiva del fabbricato:
Anno di costruzione:
1940
Riscaldamento:
Assente

Ti interessa visionare l'immobile?

Fissa un appuntamento  Fissa un appuntamento

Richiedi informazioni

Clicca su Leggi per aprire l'informativa
* Questi campi sono obbligatori

Calcola il tuo mutuo

Semplice e senza impegno
Anticipo

( % )
Mutuo

( % )

pochi semplici passi

inserisci i tuoi dati
Questionario completato
Grazie per aver richiesto un appuntamento senza impegno con un nostro Consulente del Credito e Assicurativo.

Hai inserito correttamente tutti i dati necessari e a breve riceverai una e-mail con un link da convalidare per inviare i tuoi dati.
Affiliato
Studio Pistoia Italia Sas
Viale Italia, 42 51100 Pistoia (PT)

Il nostro staff


  • Damiano Migliorini
    Affiliato

  • Rachele Del Vigo
    Collaboratrice

  • Giulia Giannoni
    Coordinatrice

  • Antonio Alfiero
    Collaboratore

  • Jacopo Imondi
    Responsabile
Viale Italia, 42 51100 Pistoia (PT)
Zona: Pistoia
Mostra su mappa
Orari: Lun-Ven 09.00 13.00 - 15.30 20.00 Sab 09.00 13.00 - 15.30 18.00
Affiliato
Studio Pistoia Italia Sas
Viale Italia, 42 51100 Pistoia (PT)

2026 Tecnocasa Franchising S.p.A. - P. IVA 08365160152 - Via Monte Bianco 60/A 20089 Rozzano (MI). Ogni agenzia ha un proprio titolare ed è autonoma. Privacy policy | Policy utilizzo | Cookie policy